100) ? false : true; navIsShown = (window.pageYOffset > heroHeight) ? true : false; triggerTransitions = window.pageYOffset > (heroHeight / 2) ? true : false; if (navIsOpen && !atTop && !navIsShown) navIsOpen = false; ">
Toggle Navigation
19510 Camden Ave, Omaha, NE 68022
Images
Floor Plans
Map
Contact
View Gallery
Slideshow
Photo Grid
Hide
Previous
Next
19510 Camden Ave
Omaha, NE 68022
Images
Show more
Slideshow
Photo Grid
Hide
Previous
Next
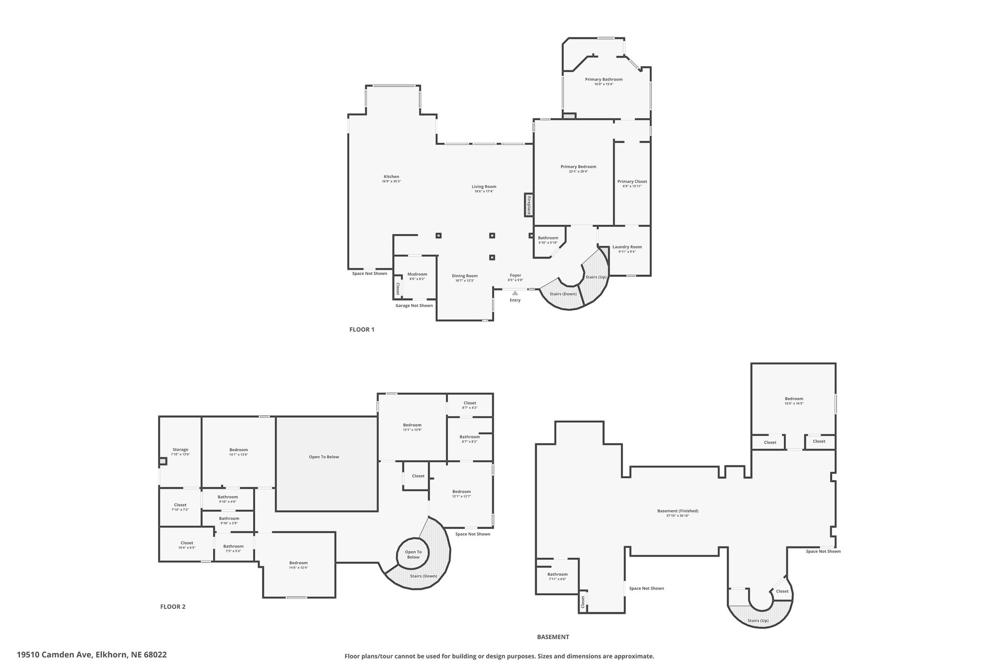
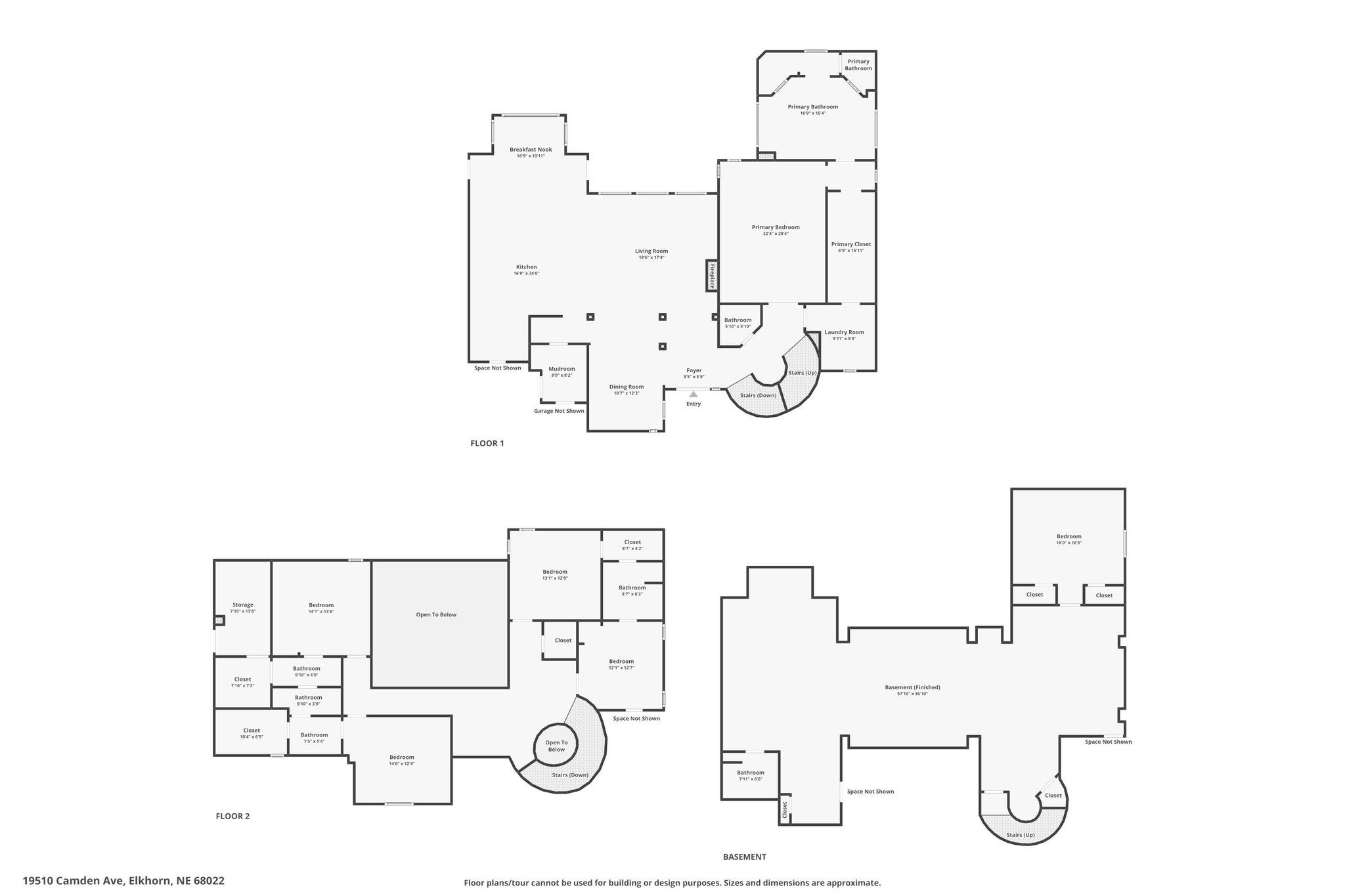
Floor Plans
Slideshow
Photo Grid
Hide
Previous
Next
Contact
Feel free to contact us for more details!
Michael Maley
Berkshire Hathaway Homeservices Ambassador Real Estate
(402) 981-7400
michael.maley@bhhsamb.com
https://m2realestateomaha.com/
Name
Email
Phone
Message
Submit
Request sent successfully!